Frydenlund Slot
Istandsættelse og nyindretning af det fredede Frydenlund Slot, tidligere bolig for Inger og Haldor Topsøe, ifm. ændret anvendelse til kursus- og mødeformål samt mindestue.
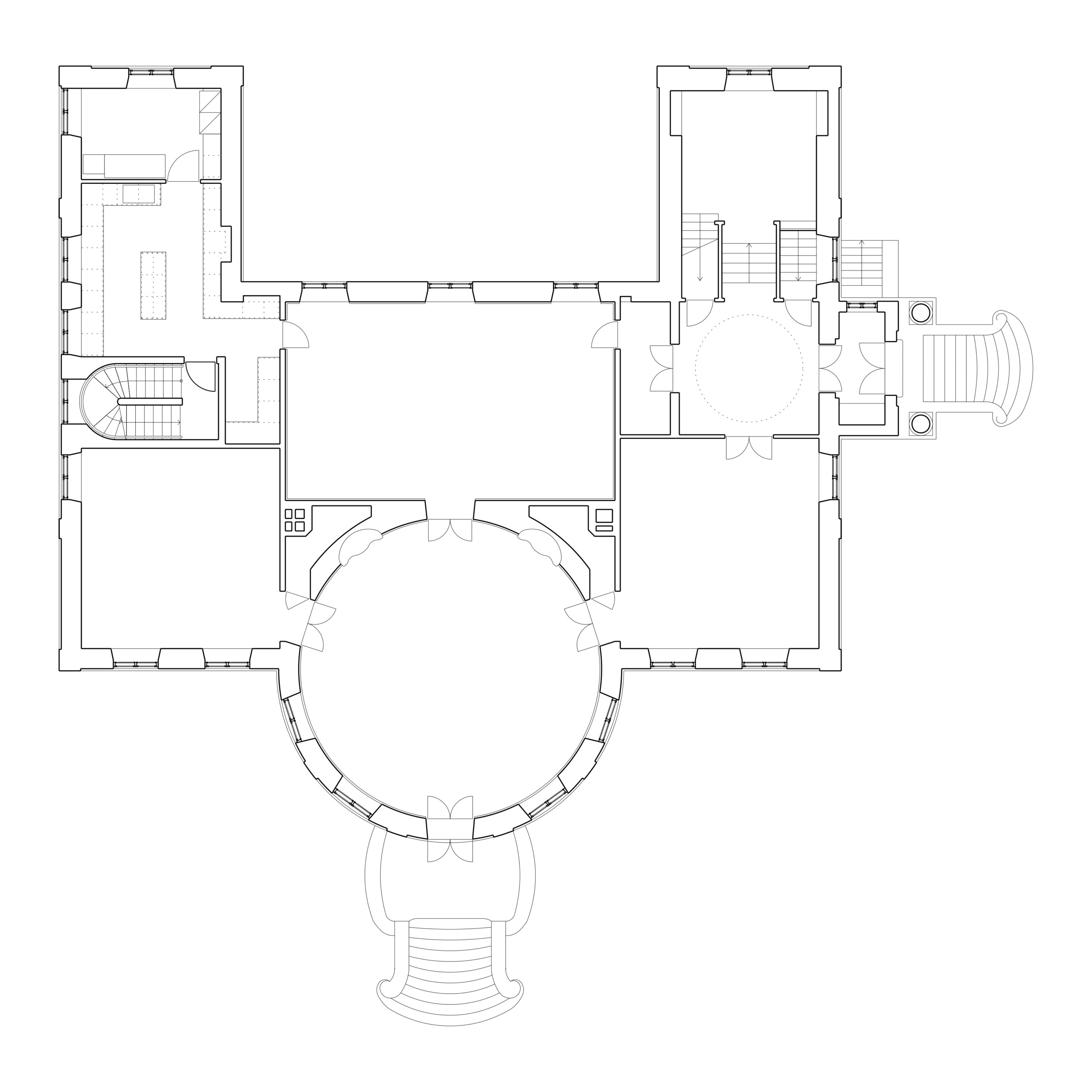
Frydenlund Slot er en tidligere kongelig lystejendom opført i 1669 og udvidet i 1722-1723 med en karakteristisk ottekantet centralbygning tegnet af arkitekten J.C. Krieger, som også var arkitekt for Frydenlunds oprindelige haveanlæg. Ca. 1793-1796 blev Kriegers ottekantede bygning nedrevet og en ny bygning opført på samme sted med J.H. Rawert som arkitekt. Interiøret er blevet ombygget ad flere omgange, og ændringerne er blevet kortlagt gennem grundige kildestudier, opmålinger mv. ifm. projektet.
Bygningens bærende bevaringsværdier knytter sig især til bygningens eksteriør og dens samspil med gårdspladsen, tilliggende bygninger og haveanlægget.
I interiøret knytter bevaringsværdierne sig primært til bygningens stueetage, navnlig hall´en og de 4 rum med samme dekorative udstyr: havesalen, spisesalen og de to hjørnerum. Rummene er her udsmykket med fine fyldningsdøre og lysningspaneler med guldstafferede profiler, og med fornemme stukfriser langs vægge. Gulvene er dekorative parketgulve med kvadratiske felter lagt i diagonalt mønster mv.
Overgangen til den ændrede anvendelse af bygningen blev løst med fokus på:
- at interiørernes stemning og karakter af Inger og Haldor Topsøes hjem i størst mulig omfang skulle bevares.
- at de nødvendige faciliteter til moderne møde – og kursusfaciliteter skulle tilvejebringes, herunder et egnet akustisk klima.
- at bygningens overflader, installationer, tyverisikring, brandsikring mv. skulle bringes i opdateret stand.
De fire stuer i stueetagen blev nænsomt overfladerenoveret uden bygningsmæssige ændringer, og på 1. sal blev der etableret moderne mødefaciliteter i det runde centralrum samt mindre gruppe-/møderum og hvilerum i værelserne.
Desuden blev der etableret en ny flugtvejstrappe, og både køkken og toilet / bad blev renoveret / moderniseret.
(Fotos: Roberto Fortuna)










