Gå til hovedindhold

Holte Sognegård

14. oktober 2020

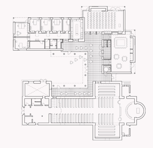
Ny tilbygning til Holte Kirke, efter 1. præmie i arkitektkonkurrence, omfattende forhal, administration, menighedssal og undervisningslokale. Byggeriet er opført som lavenergibyggeri i klasse 2015.

Sognegårdsfunktionerne er samlet i en én-etages bygningskrop beliggende nord for kirkebygningen. Den nye bygningskrop er udformet således, at den ”spejler” det indhak, der i kirkebygningen dannes mellem nordre sideskib og kapel. Derved opstår der imellem de to bygninger et indre gårdrum, en slags kirketorv eller klostergård. Nord for det fælles fordelingsareal, anlæggets forhal og naturlige samlingspunkt, er undervisningslokale og menighedssal placeret, mens kontorer og personalefaciliteter er beliggende i en ”administrationsfløj”, der udgår fra forhallen.

Fra den sydlige del af forhallen er der etableret adgang til kirken. Med denne relativt tætte forbindelse mellem kirke og sognegård er det målet, at det samlede anlæg kommer til at fremstå som en helhed, hvor det vil være naturligt, at man efter gudstjenester samles til uformelt samvær i sognegårdens forhal.

Der er valgt et stilfærdigt modernistisk formsprog, som ikke gør kirkens arkitektur rangen stridig, men som alligevel låner visse træk for at sikre anlæggets samhørighed. Det drejer sig først og fremmest om facadematerialet, hvor den nye tilbygning fremstår med nogenlunde samme murede filtsede og hvidmalede overflade som kirkens facader. Men også en sammenstilling af beslægtede bygningslegemer i forskellig højde og store ubrudte murflader er fælles for de to bygningers formsprog.

Som et mere selvstændigt arkitektonisk træk er alle den nye bygnings udadgående hjørner ”underskåret” ved at murværket i hjørnet er knækket indad for at opnå tilbageliggende glaspartier mod de bagvedliggende rum. Disse steder er det overliggende murhjørne båret af en betonsøjle. Denne gennemgående detalje er bygningens særkende set fra parkarealet.

I bygningens indre fremtræder interiørerne enkle, lyse og præget af traditionelle og holdbare danske materialer, træ, tegl, puds og sten.

I forhallen og salene er store vindues- og dørpartier ført helt til gulv, så grænsen mellem inde og ude sløres, og i kontorerne er der vidtstrakte vinduer i øjenhøjde både for den siddende og den stående. Bygningen ”følger med” i de nære omgivelser.

Samtidig er der i vidt omfang introduceret højtsiddende sidelys eller ovenlys i rummenes bagkant, således at så godt som alle opholds- og arbejdsrum er meget lyse og forsynet med dagslys fra to sider.


Bygherre: Ny Holte Sogns Menighedsråd
Udført: 2012 – 2015
Byggesum: kr. 22 mio. ekskl. moms
Fogh & Følners rolle: Totalrådgivning