Kulturhuset Aksen
Med opførelsen af et nyt hovedbibliotek i Asnæs Bymidte ønskede Dragsholm Kommune at etablere en modvægt til det altdominerende Asnæscenter med tilhørende parkeringsarealer. Man ønskede et moderne bibliotek, som kunne fungere som uformelt mødested og mangefacetteret kulturcenter i byen.
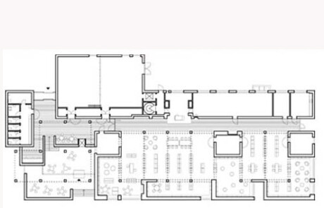
Fogh & Følners bygning fra 2007 blev derfor placeret med front mod den gamle hovedgade, men tilbagetrukket herfra, for derigennem at give plads for en mindre bypark – en slags ikke-kommerciel bymidte, hvor også den eksisterende kunstbygning ”Huset i Asnæs” kunne indgå.
Bibliotekets foyer, udformet som en højloftet søjlehal, åbner sig mod denne bypark og er samtidig forhal for bibliotekslokalerne og to store mødesale.
Bibliotekssalene forsynes med dagslys via store rytterlys og såvel eksteriør som interiør er helt domineret af to materialer i samspil, benhvid beton og murværk af gule teglblokke.
I forbindelse med kommunesammenlægningen blev bygningen omdøbt til kulturhus og fungerer i dag som sådan.
(Fotos: Ole Akhøj)









